• Application

2 Bed, First Floor Flat

Dumbarton Road , Glasgow  | Council Tax : Band  B

£945 pcm


Lease Term: Long Term | Deposit: £1308 | Furnished: No | Landlord Ref:

Key Information

Type

First Floor Flat

Heating

Gas

Bedrooms

2

Bathrooms

1

Garden

Communal

Parking

On Street

Wifi

900 Mb

Status

Pending

360 Virtual Tour

Features

  • Bright Spacious
  • First Floor Flat
  • Bay Lounge
  • Fitted Kitchen
  • 2 D/bedrooms
  • Quality Bathroom
  • Gas C/h
  • Double Glazed
  • Controlled Entry
  • Close To Amenities

Appealing bright first floor 2-bedroom flat in popular locale with a wide range of amenities close at hand. These include various bars, restaurants, and general convenience stores. The property is well served by public transport being on a main bus route, and Scotstounhill train station half a mile away.

Comprising freshly decorated apartments of entrance hall, spacious bay window lounge, modern fitted kitchen, two double bedrooms, and modern bathroom with shower fitment. Special features include gas central heating, double glazing, and controlled entry system. Viewing essential.

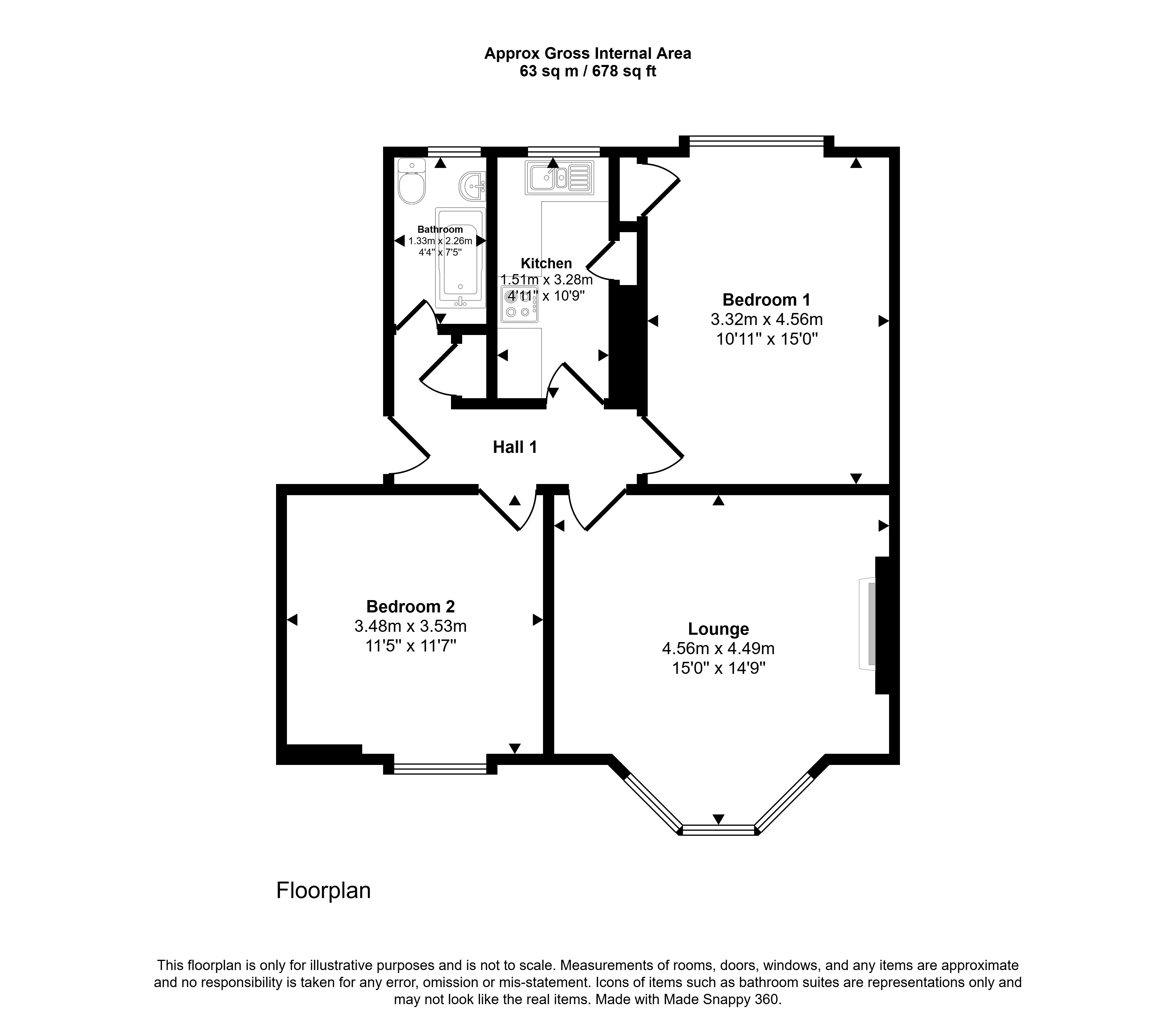
DIMENSIONS

LOUNGE:  15ft 0in x 14ft 9in   (4.56m x 4.49m)
KITCHEN:  4ft 11in x 10ft 9in   (1.51m x 3.28m)
BEDROOM 1:  15ft 0in x 10ft 11in   (4.56m x 3.32m)
BEDROOM 2:  11ft 7in x 11ft 5in   (3.53m x 3.48m)
BATHROOM:  7ft 5in x 4ft 4in   (2.26m x 1.33m)

LANDLORD REGISTRATION NUMBER: 896883/260/18071 
LETTING AGENT REGISTRATION NUMBER: LARN 1904048
RENT: £945 - Unfurnished
EPC: C

Location

Dumbarton Road
Glasgow

Floor Plans

Floor Plans
Whilst every endeavour is made to ensure these particulars provide an accurate and fair description of the property, prospective purchasers must satisfy themselves as to accuracy. These particulars should not, and do not form part of any contract, implied or otherwise, verbal or written. No warranty is implied or given as to the provision of any services such as telephone, gas, electricity, water or sewerage.

Internet Connection Speeds

Broadband & Fibre Internet connections vary by provider. We display the current maximum speeds as reported by BT in the given postcode area. Wifi around the home is dependant on the router provided by your selected internet service provider (Sky, BT, Talk Talk, etc..). Your router facilitates connection to the internet. Wifi and wired connections (ethernet) speeds will vary. Shown is the reported maximum speed permissible on a Fibre connection using a wired ethernet router connection. ADSL (standard broadband) will be slower than the value shown. SPEEDS SHOWN ARE FOR GUIDE PURPOSES ONLY & UNICORN HOMES ACCEPT NO RESPONSIBILITY FOR, OR PROVIDE ANY GUARANTEES OF AVAILABLE INTERNET SPEEDS.

Properties For Rent

Kintyre Property Co. First Floor Flat, Craig Road, Cathcart
Under Application

First Floor Flat

£750 pcm

Kintyre Property Co. Townhouse, Hillpark Drive, Hillpark
Under Application

Townhouse

£950 pcm

Kintyre Property Co. Second Floor Flat, Nutberry Court , Queens Park
Under Application

Second Floor Flat

£995 pcm

Kintyre Property Co. First Floor Flat, West Nile Street, Glasgow
Under Application

First Floor Flat

£895 pcm

Kintyre Property Co. Main Door Flat, Fairley Street, Ibrox
Under Application

Main Door Flat

£595 pcm

Kintyre Property Co. Second Floor Flat, Hyndland Road, Hyndland
Under Application

Second Floor Flat

£1,195 pcm

Kintyre Property Co. Ground Floor Flat, Somerville Drive, Mount Florida
Under Application

Ground Floor Flat

£850 pcm

Thinking Of Renting?

Contact us today to discuss details of our Fully Managed Service.

Our all-inclusive FIXED PRICE GUARANTEE for sellers - now available for a limited time only.
Click here for more information